top of page
AutoCAD
Project

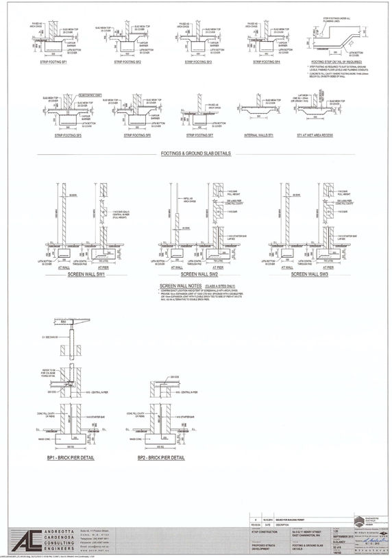
A structural engineering drawing set for a multi-unit residential development on Henry Street in Fremantle WA. The package includes ground slab and footing layouts suspended slab plans roof steel framing layouts and various structural details including screen walls brick piers slab steps anchor details steel post connections and wall junction sections. The drawings include structural notes material specifications reinforcement details and stair sections.
bottom of page











